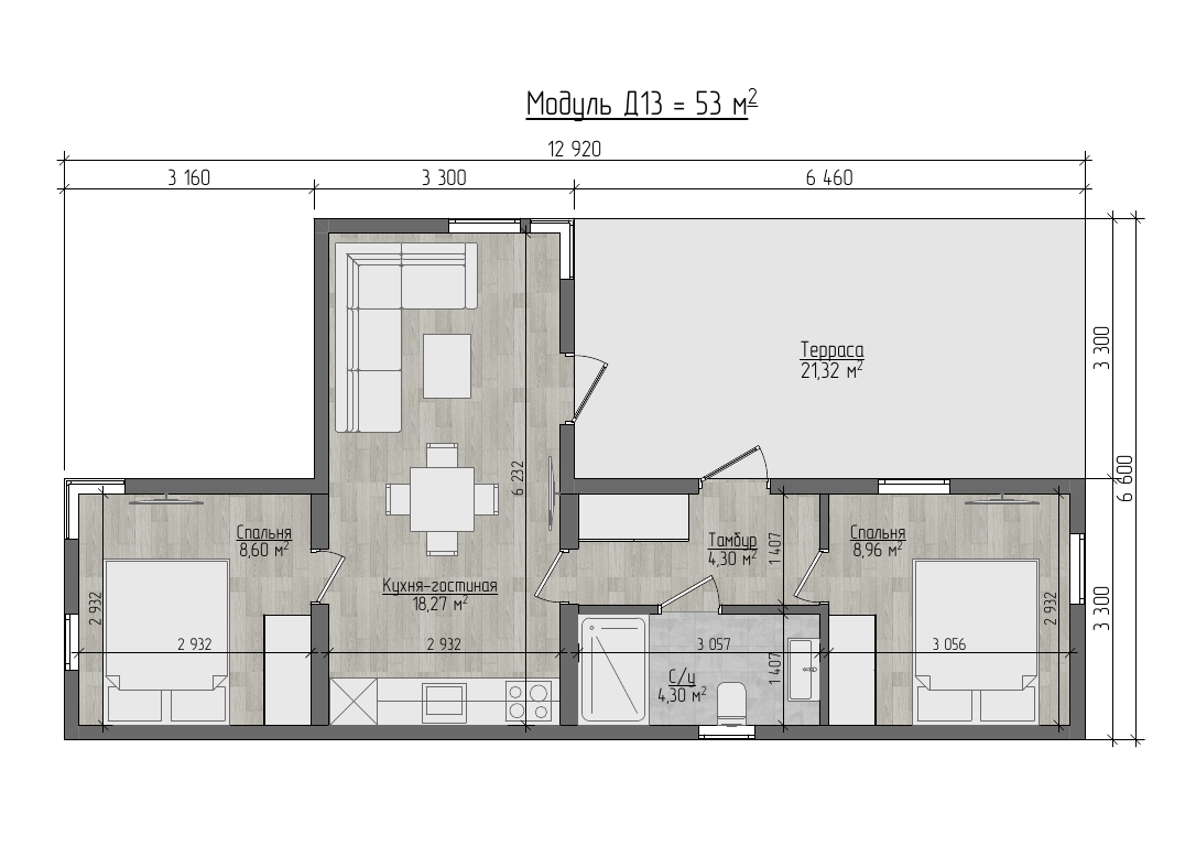
Модуль Д-13 75
Гармония современного дизайна, функциональности и уюта. Стильные фасады и эргономичная планировка создают простор и комфорт. Энергоэффективные технологии и возможность расширения делают его экономичным и адаптивным. Это дом, где каждая деталь работает на ваше счастье
-
Количество модулей
-
Количество модулей
-
Тип проекта
-
Тип проекта
-
Площадь
-
Площадь
-
О модуле
-
О модуле
-
- Теплый контур с внешней отделкой и чистовой отделкой стен
- 2 385 000 Р.
- Чистовая отделка с инженерным оборудованием и сетями
- 1 590 000 Р.
- Цена за кв.м
- 53 000 Р.
- Итого под ключ
- 3 975 000 Р.
-
- Количество свай
- 30
- Фундамент
- 180 000 Р.
- Установка полностью
- 150 000 Р.
- Терраса (с фундаментом и монтажем)
- 158 624 Р.
Узнайте стоимость вашего проекта
Спасибо! Мы скоро с вами свяжемся