-
Количество модулей
-
2
-
Количество модулей
-
2
-
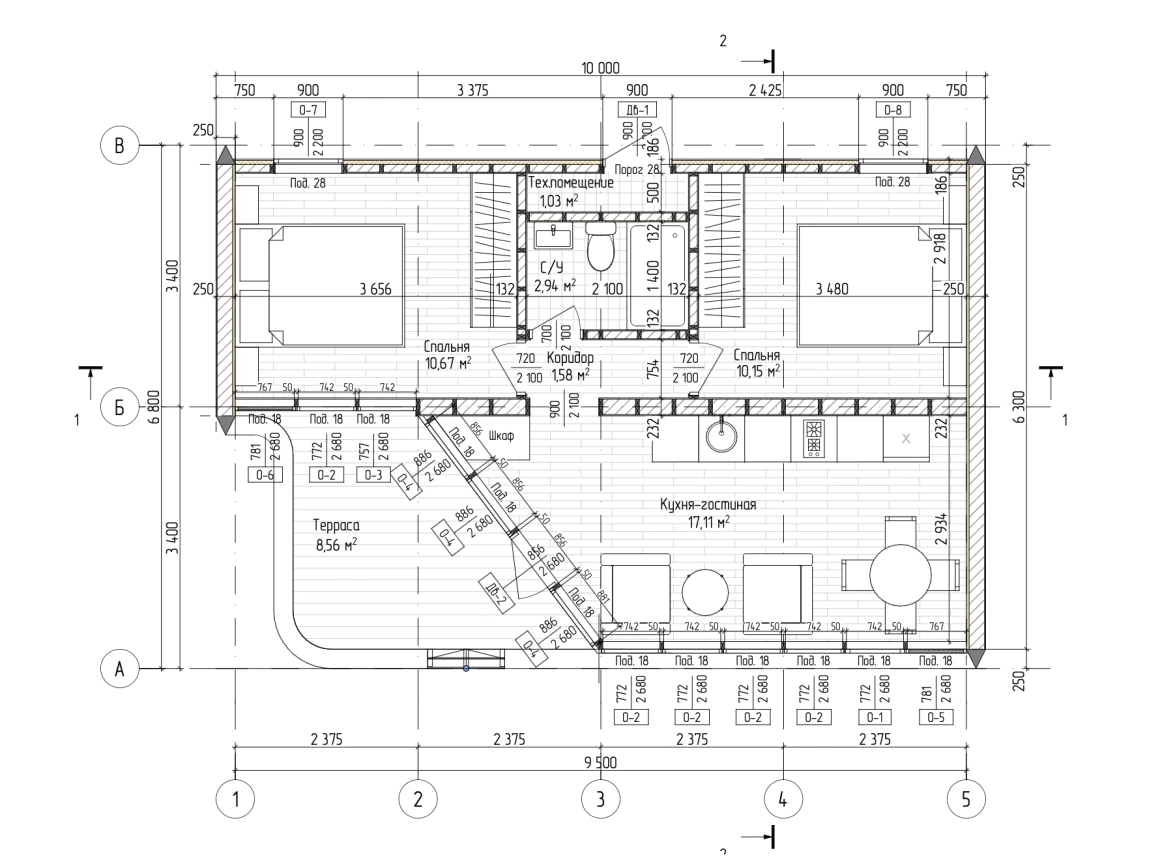
Кол-во комнат
-
3 комнаты
-
Кол-во комнат
-
3 комнаты
-
Площадь
-
43.5 кв.м (жилая) 8.5 кв.м (терраса)
-
Площадь
-
43.5 кв.м (жилая) 8.5 кв.м (терраса)
-
О модуле
-
Уровень ответственности здания 2 (нормального уровня ответственности).
Степень огнестойкости 3.
Класс конструктивной пожарной ответственности С3
Класс функциональной пожарной опасности Ф1.4.
Расчетная температура наиболее холодной пятидневки -32С
Расчетная снеговая нагрузка 150/кгм2 -
О модуле
-
Уровень ответственности здания 2 (нормального уровня ответственности).
Степень огнестойкости 3.
Класс конструктивной пожарной ответственности С3
Класс функциональной пожарной опасности Ф1.4.
Расчетная температура наиболее холодной пятидневки -32С
Расчетная снеговая нагрузка 150/кгм2
-
Конструктивные решения
-
Каркас модуля представляет собой конструкцию, состоящую из сваренных профильных
труб 100х100х3 и гнутого швеллера 200х50х4 и оцинкованных ЛСТК (100х50х1.2 – стойки,
200х50х1.2 – горизонтальные связи (ЛСТК может быть заменен на влагостойкую фанеру 18
и 36 мм)), скрепленных саморезами со сварным каркасом.
На основании статического расчета модуля на снеговые и ветровые нагрузки, сделан
вывод: напряжения возникающие в конструкции каркаса модульного дома не
превышают допустимые значения, и конструкция соответствует строительным
нормам (статический расчет предоставляется по необходимости).
- Перекрытие пола – подшива снизу 25 мм, гнутый швеллер 200*50*4 мм (холодный цинк),
лаги ЛСТК 200*50*1.2 мм (или влагостойкая фанера 200*36мм), утеплитель Тепофол (или
мин. Плита).
- Наружные стены – их проф. Трубы 100*100 мм, ЛСТК 100*50 (или влагостойкая фанера
200*36мм). Внутренняя обшивка Egger ЛДСП 16 мм. Внешний фасадный материал – гибкая
керамика.
- Внутренние стены – ЛСТК 100* 50 (или фанера 100*36)мм., обшивка Egger ЛДСП 16 мм с
двух сторон.
- Крыша (потолок) – гнутый швеллер 200*50*4 мм (холодный цинк), лаги ЛСТК 200*50*1.2
мм (или влагостойкая фанера 200*36мм), утеплитель Тепофол (или мин. Плита). ПВХ
мембрана 2 мм. -
Конструктивные решения
-
Каркас модуля представляет собой конструкцию, состоящую из сваренных профильных
труб 100х100х3 и гнутого швеллера 200х50х4 и оцинкованных ЛСТК (100х50х1.2 – стойки,
200х50х1.2 – горизонтальные связи (ЛСТК может быть заменен на влагостойкую фанеру 18
и 36 мм)), скрепленных саморезами со сварным каркасом.
На основании статического расчета модуля на снеговые и ветровые нагрузки, сделан
вывод: напряжения возникающие в конструкции каркаса модульного дома не
превышают допустимые значения, и конструкция соответствует строительным
нормам (статический расчет предоставляется по необходимости).
- Перекрытие пола – подшива снизу 25 мм, гнутый швеллер 200*50*4 мм (холодный цинк),
лаги ЛСТК 200*50*1.2 мм (или влагостойкая фанера 200*36мм), утеплитель Тепофол (или
мин. Плита).
- Наружные стены – их проф. Трубы 100*100 мм, ЛСТК 100*50 (или влагостойкая фанера
200*36мм). Внутренняя обшивка Egger ЛДСП 16 мм. Внешний фасадный материал – гибкая
керамика.
- Внутренние стены – ЛСТК 100* 50 (или фанера 100*36)мм., обшивка Egger ЛДСП 16 мм с
двух сторон.
- Крыша (потолок) – гнутый швеллер 200*50*4 мм (холодный цинк), лаги ЛСТК 200*50*1.2
мм (или влагостойкая фанера 200*36мм), утеплитель Тепофол (или мин. Плита). ПВХ
мембрана 2 мм.
-
Внешний облик здания. Применяемые материалы.
-
Остекление: окна и двери.
Фасадное остекление. К металлическим стойкам конструкции приклеиваются и
герметизируются стеклопакеты (одно — двух камерные, тонированные) на клей — герметик.
клей-герметик предназначен для герметизации, склейки и ремонта в строительных конструкциях. Материал особенно
эффективно используется в качестве всепогодного герметика при структурном остеклении, в ограждающих стеновых
конструкциях и окнах. Для вторичной герметизации двойных стеклопакетов, которые в последствие будут помещены в
оконную раму и структурно остеклены. Для герметизации швов между оконным стеклом и опорной конструкцией
(рама, импост, средник окна).
Входная дверь и открывающееся окно: алюминиевый профиль (система Alumin tec xno),
структурный стеклопакет.
Задняя фасадная часть: ПВХ ламинированные конструкции — окна (или алюминиевые).
Техническая дверь металлическая, интегрированная под фасадный материал стены.
Стены. Боковые стены, архитектурные элементы покрыты фасадным материалом — гибкая
керамика (PHUOMI или YAOMEI). Цвет светло серый, фактура: травертин, бетон.
Задняя фасадная часть. Окрашенная рейка (цвет согласовывается).
Крыша. Покрытие ПВХ мембрана (Кровельная полимерная мембрана на основе
высококачественного пластифицированного поливинилхлорида (ПВХ), армированная
полиэстеровой сеткой). Цвет светло серый — RAL 7047. -
Внешний облик здания. Применяемые материалы.
-
Остекление: окна и двери.
Фасадное остекление. К металлическим стойкам конструкции приклеиваются и
герметизируются стеклопакеты (одно — двух камерные, тонированные) на клей — герметик.
клей-герметик предназначен для герметизации, склейки и ремонта в строительных конструкциях. Материал особенно
эффективно используется в качестве всепогодного герметика при структурном остеклении, в ограждающих стеновых
конструкциях и окнах. Для вторичной герметизации двойных стеклопакетов, которые в последствие будут помещены в
оконную раму и структурно остеклены. Для герметизации швов между оконным стеклом и опорной конструкцией
(рама, импост, средник окна).
Входная дверь и открывающееся окно: алюминиевый профиль (система Alumin tec xno),
структурный стеклопакет.
Задняя фасадная часть: ПВХ ламинированные конструкции — окна (или алюминиевые).
Техническая дверь металлическая, интегрированная под фасадный материал стены.
Стены. Боковые стены, архитектурные элементы покрыты фасадным материалом — гибкая
керамика (PHUOMI или YAOMEI). Цвет светло серый, фактура: травертин, бетон.
Задняя фасадная часть. Окрашенная рейка (цвет согласовывается).
Крыша. Покрытие ПВХ мембрана (Кровельная полимерная мембрана на основе
высококачественного пластифицированного поливинилхлорида (ПВХ), армированная
полиэстеровой сеткой). Цвет светло серый — RAL 7047.
-
Интерьер здания. Применяемые материалы.
-
Стены.
Основной материал, применяемый в оформлении стен влагостойкий ЛДСП.
Ламинированный ДСП толщиной 16 мм, классический белый с декором влагостойкий
(W960 SM). Структура поверхности SM - гладкий шелк.
Данный материал так же в конструкции модуля является конструкционным (ядром
жесткости).
Санитарная комната (с/у) стены ГЛВ (ГКЛ), ЛДСП, «мокрая зона» - стены керамогранит, пол
- керамогранит
Пол. Кварц винил.
Потолок. Натяжной потолок.
Двери меж. комнатные. Скрытого исполнения.
Электроснабжение. Установка вводного щитка и автоматов. Разводка магистральных
линий, установка распределительных коробок, подрозетников. Электрический теплый пол
в с/у -
Интерьер здания. Применяемые материалы.
-
Стены.
Основной материал, применяемый в оформлении стен влагостойкий ЛДСП.
Ламинированный ДСП толщиной 16 мм, классический белый с декором влагостойкий
(W960 SM). Структура поверхности SM - гладкий шелк.
Данный материал так же в конструкции модуля является конструкционным (ядром
жесткости).
Санитарная комната (с/у) стены ГЛВ (ГКЛ), ЛДСП, «мокрая зона» - стены керамогранит, пол
- керамогранит
Пол. Кварц винил.
Потолок. Натяжной потолок.
Двери меж. комнатные. Скрытого исполнения.
Электроснабжение. Установка вводного щитка и автоматов. Разводка магистральных
линий, установка распределительных коробок, подрозетников. Электрический теплый пол
в с/у
-
Цена модулей
-
Цена модулей
-
- Цена за кв.м
- 125 000 Р.
- Итого под ключ
- 6 500 000 Р.
Узнайте стоимость вашего проекта
Спасибо! Мы скоро с вами свяжемся